INFO     INSTA
   HOME
Emilie Boeur Architecte

Maison + écurie      
Houyet, Belgique
Construction en ossature bois
2017 - 2018

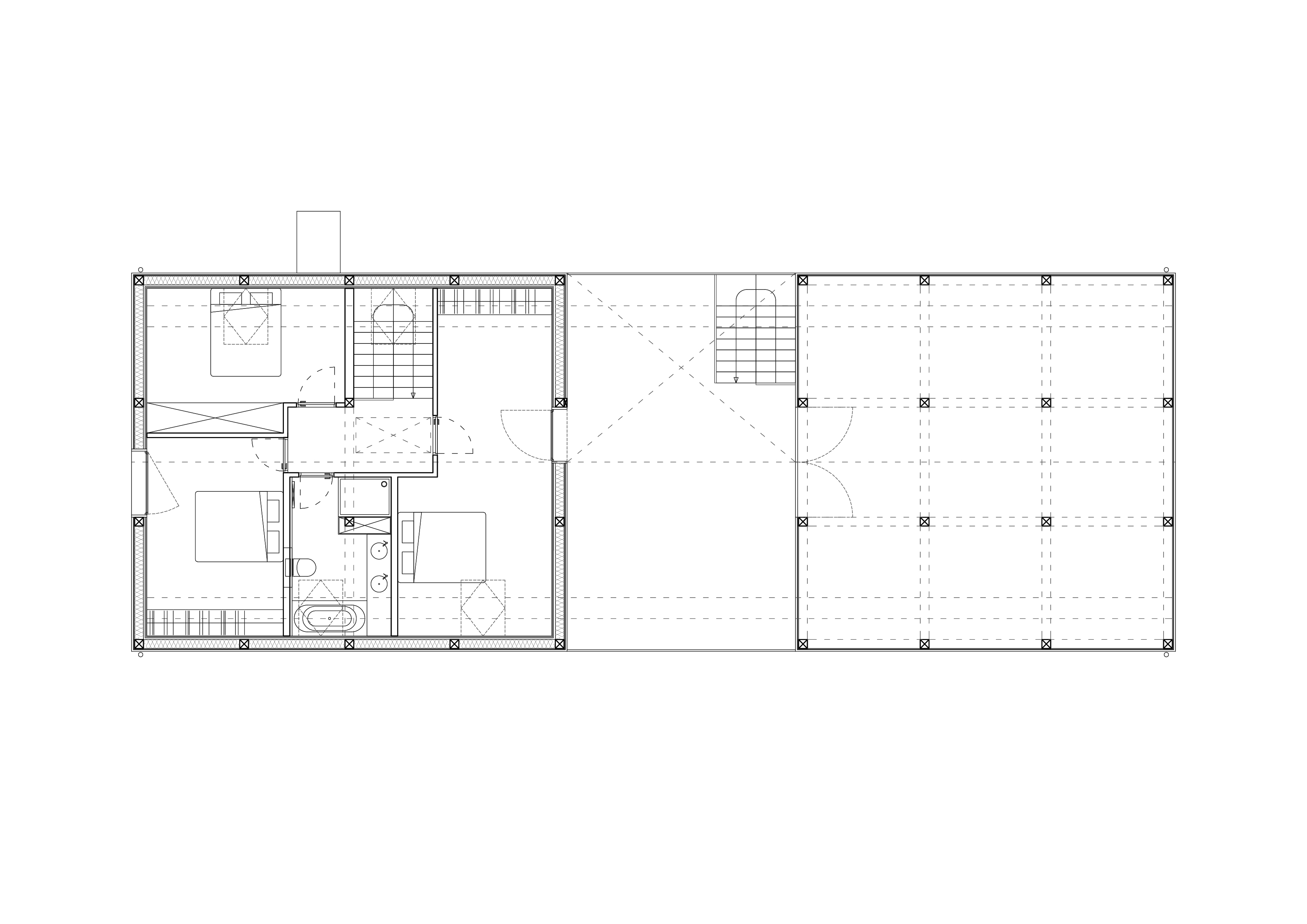
Le projet s'est développé à partir du couple de programmes : maison + écurie. La partie principale (habitation) est construite en ossature bois et se pose sur le socle du sous-sol. Le bâtiment est déposé sur le terrain naturel existant. La seconde partie (écurie) constitue le prolongement du volume de l’habitation. Entre ces deux volumes, un espace extérieur couvert (patio) fait office de liaison. A l'étage, la toiture se prolonge entièrement sur le versant nord, intimisant l’espace de terrasse. Au rez-de-chaussée, le patio permet de vivre en relation directe avec les chevaux (vues, soins, accès rapide et protégé), renforçant le lien entre l'homme et l'animal. La volonté d’unifier les deux programmes s’illustre dans ce volume unique et simple, s'inspirant des gabarits communs à cette région de Famenne, les granges. À la manière des habitats bicellulaires d'autrefois qui comprenaient un logis et une étable, l'édifice retrouve les fondamentaux du passé, réinterprétés, notamment par la création du patio couvert mettant en valeur le lien avec la nature et les chevaux.
Projet présélectionné pour l’inventaire collectif architectures !
👉🏻 https://architectures2016-2019.com/